3 1

3 bed Student Property - Let Agreed
Winchcomb Road, Norwich
£1,450pcm

**** STUDENTS ONLY **** ZERO DEPOSIT AVAILABLE ****Available September 2024, this 3 bed semi-detached gem offers convenient access to UEA, N&N, NUA, and the city center.

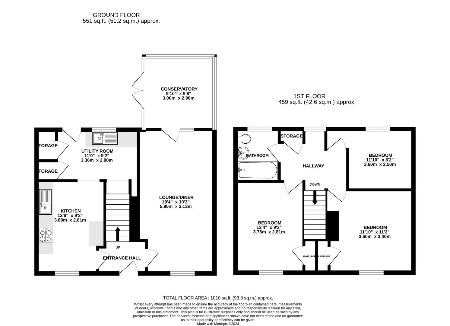
Step inside to find a welcoming entrance hall, a well-equipped kitchen/breakfast room, a handy utility room with access to a lovely garden. Downstairs, a large lounge diner awaits and leads into the conservatory. Upstairs, 3 generous bedrooms with ample storage and a modern bathroom with shower over bath provide comfortable living space for all.

Rent excludes tenancy deposit and and any other permitted payments. Deposit payable is £1500. A holding deposit of £300 is required to reserve the property. Minimum terms is 12 months. Please contact us for further information or visit our website.

**** STUDENTS ONLY ****

Available September 2024

Floorplans For Winchcomb Road, Norwich
EPC For Winchcomb Road, Norwich
Arrange a viewing for Winchcomb Road, Norwich

For further details on this property please call us on:
01603 577255

Download PDF Arrange Viewing
appraisal