6 2

6 bed Student Property - Let Agreed
Wordsworth Road, Norwich
£2,820pcm

  • Large 6 bedroom student property
  • Communal lounge and dining room
  • Driveway parking
  • Modern & well equipped kitchen
  • Available From: 28.08.2026
  • 12 month agreements preferred
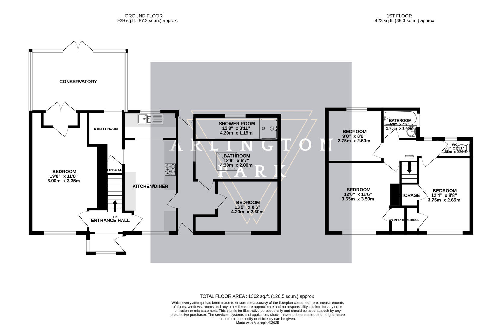
  • Bedrooms: 3 doubles, 3 singles
  • Weekly Rent: Approx. £108 pppw (Excluding Utilities)
An exceptionally large 6-bedroom student house perfect for a big group of friends. The standout feature is a huge communal conservatory, providing a fantastic social space. Also boasts a modern kitchen, parking, and a garden. A utility-inclusive package can be added for an additional £22.00 per person per week.

For a large group looking for a social hub to call home, this substantial 6-bedroom property is the perfect fit. Its standout feature is the huge, light-filled conservatory, which serves as an amazing communal lounge for everyone to share. The house offers a budget-friendly mix of three double and three single rooms, along with a modern, upgraded kitchen designed to cater for six. Outside, you'll find an enclosed garden and the convenience of off-street parking. It is rare to find a 6-bedroom house with such an incredible communal area, making this a highly sought-after property. To simplify bills for a large group, a utility-inclusive package is available for an additional £22.00 per person per week.

Council Tax Band: E
Floorplans For Wordsworth Road, Norwich
Arrange a viewing for Wordsworth Road, Norwich

For further details on this property please call us on:
01603 577255

Download PDF Arrange Viewing
appraisal